Willipa Bay

image

Our first day was about three and half hours, driving down Hood Canal on US 101 to visit friends who live on Willipa Bay in Pacific County. They have  perfectly level drive with power and water. As one can see, the view is magnificent. My maternal grandfather and great grandfather moved up from Astoria and were fishermen out of South Bend and Tokeland. We have been invited back.

image

First small town burger was in Elma. We don’t usually frequent chain burger places when we travel, except McD often serves good coffee.

image

The dogs weathered the first day well Kinnon (above) sleeps and Allie sits and pants. Dramamine doesn’t phase her.

image

Dennis and Kathy have an adopted peacock named Henry. Kinnon is a bit birdy, so Henry is now in the woods. Smart fellow!

Walkabout 2015 Preparation

route

Proposed Route

With three days and some amount of hours left until we push-back I thought I’d better offer a preview of the preparation and trip, if nothing else than to review them myself.

Above left is the most current itinerary, a counter-clockwise trip around the US and Canada. Parameters for the dates are mid-June graduation of Grandson Mitchell and the mid May opening of the Canadian Rockies.

Each walkabout we’ve taken (this will be number three) we’ve made fewer reservations and been more open to “one day at a time.” We also try to drive less each day, with 300 miles as a guideline maximum. More state, provincial and national parks.

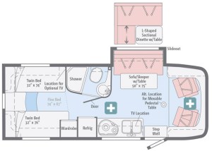
Outfitting the new Navion has been fun, and we’ll do more rearranging on the road. The four cylinder, twin turbo diesel and 7 speed transmission make the rig a dream to drive, with 18.5 mpg so far. The floor plan (we chose the L-shaped sectional) is much more livable than our 2006 View.

floorpan

If you’d like to follow our trip, please subscribe to my blog.

Christmas

It occurred to me that the holiday season could be happy and joyous for everyone if it was celebrated in July or it didn’t occur with so many other people’s expectations. Beginning as early as August, there is a tsunami of Christmas which rolls over the land with a mandatory participation. No high ground here, celebrate we will, ready or not.

Those who can’t swim in December and have no social lifevest struggle to stay afloat. Life events which might seem ordinary in Summer are magnified by the seasonal darkness and expected liturgy of Ho! Ho! Ho!

We are immersed in the Winter Festival, the earliest seasonal celebration, attempts to throw some light into the longest nights of the year with merriment. Solstice, mistletoe, Santa Claus and family. Good cheer and peace to men of goodwill! I have to admit that your entire house and lawn covered with lights is a bit over the top, but we all deck our halls differently.

Some of us celebrate the birth of Jesus of Nazareth. For me, the celebration is a reminder of the incarnation of God in humanity, as Jesus taught, rather than the mythical birth narratives. So, maybe he wasn’t born in December or in Bethlehem. Doesn’t matter. The authors of Mathew and Luke thought the birth was a big deal, and so it was. Perhaps the stories are more of a vehicle for theology than an historical chronology, but the Message has to begin somewhere.

The most recent celebration is that of Consumerism. I admit my thirteen years of working in the mall has become a bias. Or PTSD, take your pick. As Stan Freeberg said it, a red and green bandwagon to jump on. I can recycle LL Bean and Lands End catalogs and flyers with the best of them, though I wish they’d send just one, like Sears used to. It is fun to shop locally for the little ones and buy gift cards for stores that don’t sell video games for the older grand kids.

This year we stayed home for the holidays and it turned out there was a reason. Opportunities for gratitude, service and growth appear all year long but they stand out in December. Today we’ll head out to visit family and friends with our three wonderful canine companions in their new home on wheels.

Today is the last day of Advent. “What came into being though the Word was life, and the life was a light for all people. The light shines in the darkness and the darkness doesn’t extinguish the light.” John 1:3-5. I used to think I’d had done Christmas enough and could take break, but there are still more surprises in the light of the season, however it’s celebrated. Can’t wait for next year!

Merry Christmas!